Geosol Structure réalise vos études de structure sur vos projets de bâtiments d'habitation et génie civil industriel.

Geosol Structure est un bureau d'études avec une expérience dans la réhabilitation et l'expertise du parc existant (Fissures, extension etc...)




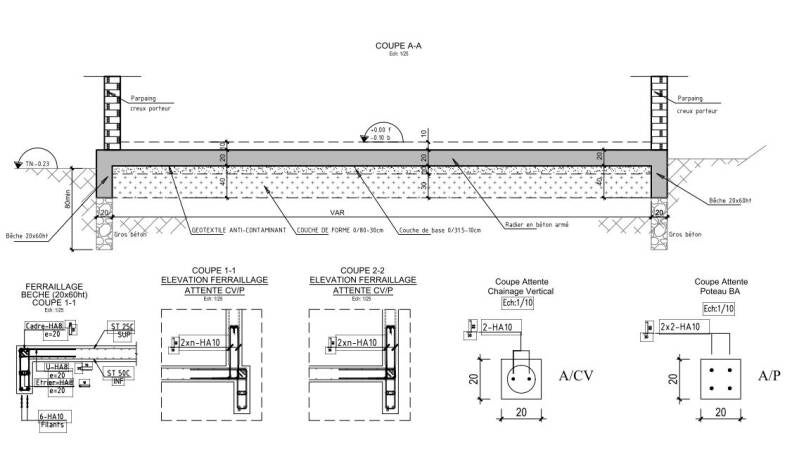
Des plans d’exécution avec un chiffrage optimisé et précis. Le calcul de structure permet de réduire le coût du projet et de garantir la qualité et la durabilité de votre construction

Conception et réalisation des plans de fondations en fonction des résultats géotechniques et du CCTP du projet


Conception et réalisation des plans des installations industrielles: Bâtiments industriels, Pylônes, Structures diverses etc...


Clients
Particuliers, architectes, bureaux d’études de maîtrise d’œuvre, promoteurs immobiliers, bailleurs sociaux et entreprises générales.
Calcul de structures
Maîtrise d’œuvre, Assistance aux services d’étude de prix (entreprise de gros œuvre) et Etude d’exécution.
Localisation
Situé à Nice, nous travaillons sur toute la région Sud-Est.